MEDICAL MALL
開業物件紹介
松原天美クリニックビル
医療モール紹介
松原天美クリニックビルは、周囲にスーパーマーケットやドラッグストアといった商業施設が多数あり、
来院者が買い物のついでに非常に通いやすい立地です。
近隣には、みつばち保育園や松原市立天美北小学校があり、学生や保護者の方々が日常的に利用するエリアです。
これにより、学校帰りや送り迎えの際にも気軽に立ち寄ることが可能です。
アクセス面でも、河内天美駅が近く、公共交通機関を利用する方々にも非常に便利な立地です。
近鉄南大阪線の大阪阿部野橋駅からは12分、藤井寺駅からは11分で河内天美駅まで来ることが可能なため、
大阪市阿倍野区や藤井寺市にお住いの方はアクセスし易い環境です。
1㎞商圏の人口は約32,000人と高い人口密度を誇り、多くの住民が暮らす地域であるため、
地域密着型の医療サービスを提供するには最適なクリニックモールです。
- 開設月
- 2018年11月開設
- 住所
- 580-0032 大阪府松原市天美東2-135-2
- アクセス
- 近鉄南大阪線「河内天美駅」より徒歩約10分
〜車で三宅インターより阪神大和川線で神戸まで約40分
〜車で三宅インターより近畿道で吹田JCTまで約20分 - 募集科目
- 内科婦人科小児科心療内科整形外科歯科皮膚科眼科耳鼻咽喉科
- 魅力ポイント
- 三宅インター下りてすぐで車通勤が便利大型商業施設セブンパークの目の前で大変視認性の良い医療ビル
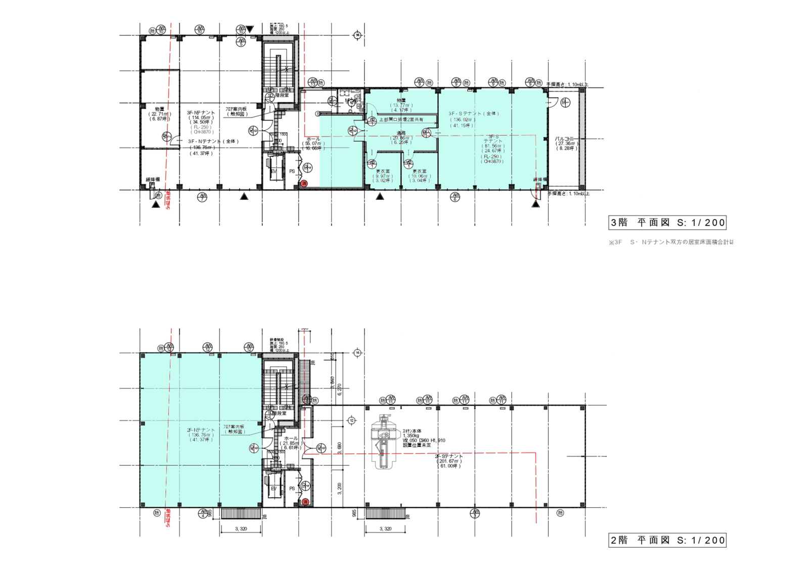
- 平面図
※画像クリックで拡大 -
- 区画情報
-
- 区画名 ステータス
- 1F: 49.42坪決定
- 2F: 34.50坪募集中
- 2F: 41.37坪決定
- 3F: 41.37坪募集中
- 3F: 51.00坪決定
- 運営中の
クリニック -
-
1F:めぐみ内科・内視鏡クリニック
- 診療科目:
- 内科・消化器内科・内視鏡内科
- 電話番号:
- 072-338-8001
-
2F:おざき整形外科クリニック
- 診療科目:
- 整形外科・リハビリテーション科・リウマチ科
- 電話番号:
- 072-332-3003
-
3F:おおはし皮フ科・形成外科クリニック
- 診療科目:
- 皮膚科・形成外科・アレルギー科
- 電話番号:
- 072-247-5120
医療モールの紹介
松原天美クリニックビルは、周囲にスーパーマーケットやドラッグストアといった商業施設が多数あり、
来院者が買い物のついでに非常に通いやすい立地です。
近隣には、みつばち保育園や松原市立天美北小学校があり、学生や保護者の方々が日常的に利用するエリアです。
これにより、学校帰りや送り迎えの際にも気軽に立ち寄ることが可能です。
アクセス面でも、河内天美駅が近く、公共交通機関を利用する方々にも非常に便利な立地です。
近鉄南大阪線の大阪阿部野橋駅からは12分、藤井寺駅からは11分で河内天美駅まで来ることが可能なため、
大阪市阿倍野区や藤井寺市にお住いの方はアクセスし易い環境です。
1㎞商圏の人口は約32,000人と高い人口密度を誇り、多くの住民が暮らす地域であるため、
地域密着型の医療サービスを提供するには最適なクリニックモールです。
近隣エリアマップ
周辺施設
- 商業施設
- 学校施設
- 保育施設
- 役所・公共施設
- 交通機関
- セブンパーク天美 徒歩4分 (290m)
- 万代 天美店 徒歩9分 (650m)
- 松原市立天美北小学校 徒歩5分 (400m)
- 松原市立天美南小学校 徒歩6分 (450m)
- みつばち保育園 徒歩9分 (650m)
- 天美北保育園 徒歩9分 (700m)
- 松原天美南郵便局 徒歩7分 (500m)
- 松原天美東郵便局 徒歩11分 (850m)
- 近鉄南大阪線「河内天美駅」 徒歩11分 (850m)
開業支援のプロがあなたの理想の開業地探しをサポート
まずは一度ご相談ください。
開業物件に関するご相談や資料請求は
こちらから承ります。
-
ドクター・開業支援担当の方専用ダイヤル
-
物件に関するお問い合わせはこちら






